The Orchard Frame

Chikkamagalur

Project Type

Studio & home

Built Area

5,000 sft.

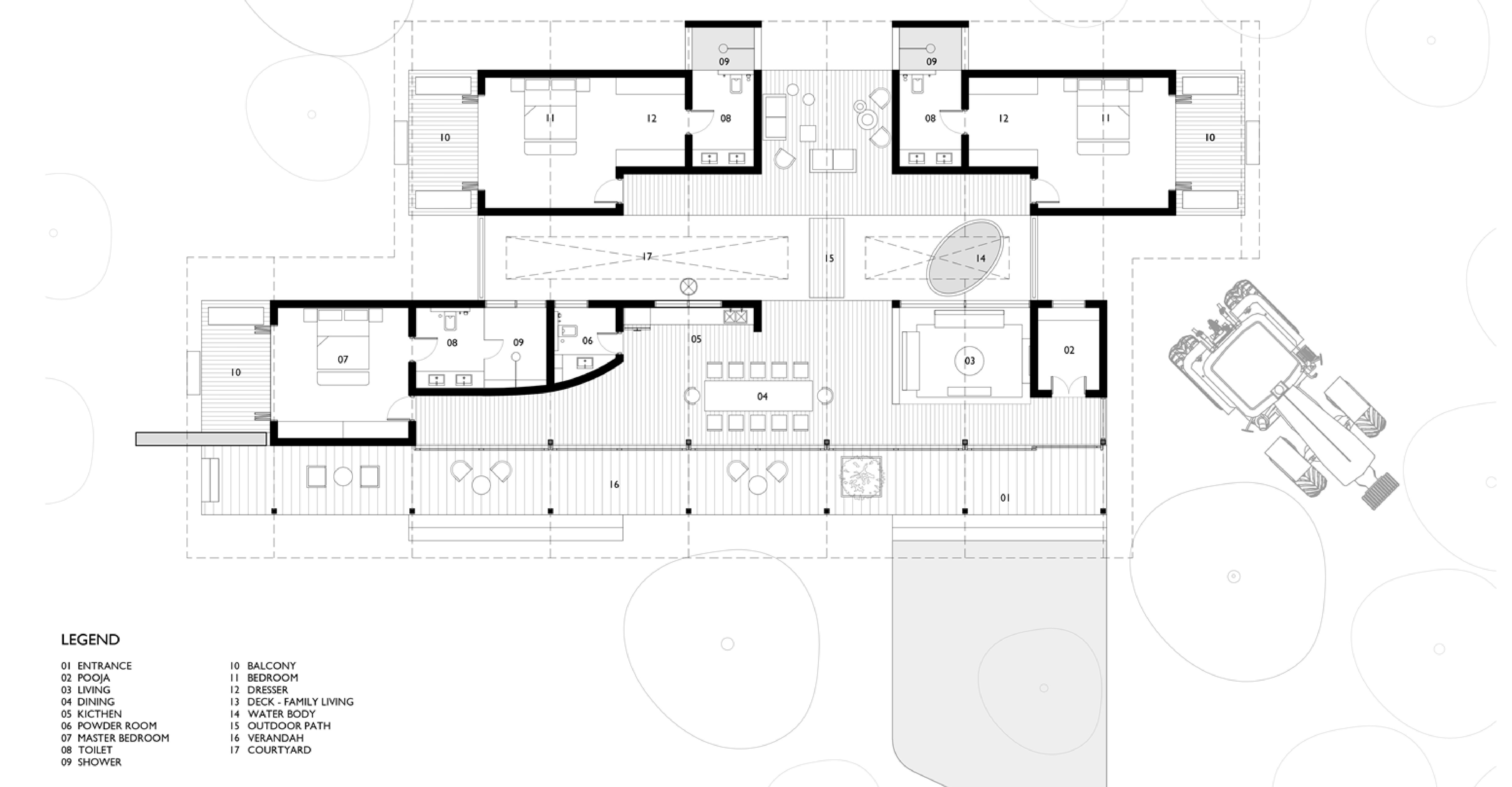
Set amidst the dense foliage of a mango orchard in Chikkamagalur, this project was conceived as a 'lens' through which to view the landscape. Designed for a professional photographer, the structure functions as both a private residence and an active daylight studio. The architectural intent was to tread lightly on the land; we utilized an elevated plinth to navigate the uneven terrain of the farm without disrupting the root systems of existing trees. The defining feature is the soaring mono-pitch roof, structurally separated from the enclosure walls. This 'floating' canopy allows for a continuous clerestory window, flooding the studio volume with diffuse, shadow-free light—critical for photography—while encouraging cross-ventilation in the humid plantation microclimate. The design blurs the boundary between indoor workspace and outdoor orchard, offering a sanctuary where creativity and nature coexist.