The Chameleon Pavillion

Pune

Project Type

Recreational

Built Area

18,000 sft.

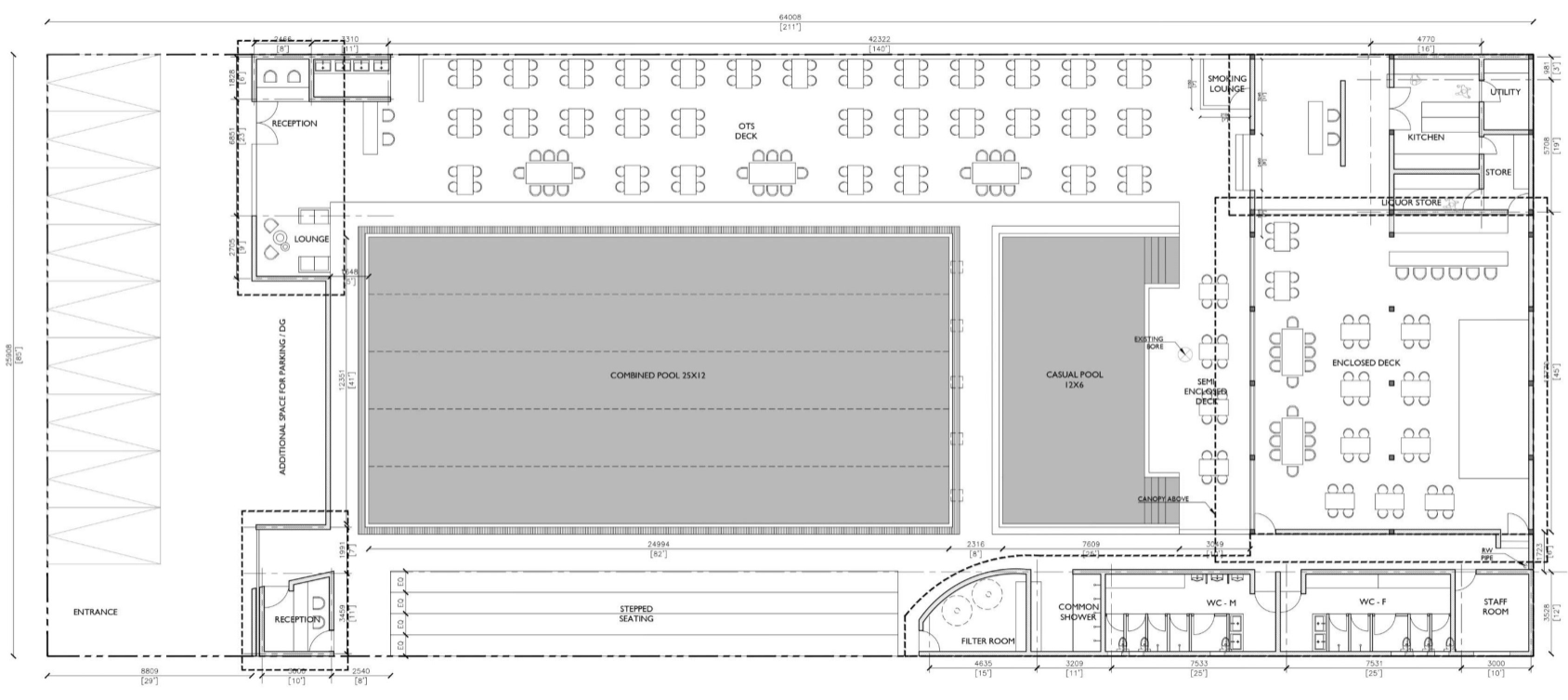
A unique business brief was laid out to us. During the day, the space functions as a bright, airy Academy Café, offering nutritional menus for athletes and a viewing gallery for parents and spectators. As night arrives, through integrated smart lighting and modular furniture, the space transitions into a sophisticated Restobar.

The central structure is a high-ceilinged, open-plan pavilion that houses the culinary program. The acoustic design allows for high-energy music near the casual pool while maintaining intimate lounge pockets within the interior. The Roof System: A simple corrugated or color-coated steel sheet is utilized for its durability and rapid installation.

The architectural identity is defined by a high-strength steel frame that serves as the "backbone" of thefacility. This system is leveraged for its high strength-to-weight ratio, allowing for the large-span, column-free spaces essential for an unobstructed view of both the semi-olympic training lanes and the casual event pool.

The architectural identity is defined by a high-strength steel frame that serves as the "backbone" of thefacility. This system is leveraged for its high strength-to-weight ratio, allowing for the large-span, column-free spaces essential for an unobstructed view of both the semi-olympic training lanes and the casual event pool.

To soften the industrial nature of the steel, the structure can be integrated with exposed timber accents or slats, creating a "resort-industrial" look. This interplay of materials allows the building to feel professional during daytime academy hours and sophisticated when the restobar lights take over at night.

The lightweight nature of the steel structure allows for the easy suspension of event-specific equipment, such as professional sound systems, DJ lighting, and festive decorations for high-impact events like Holi.